Listed by Karen Rivard of EXP Realty (Cell: 603-867-5883)
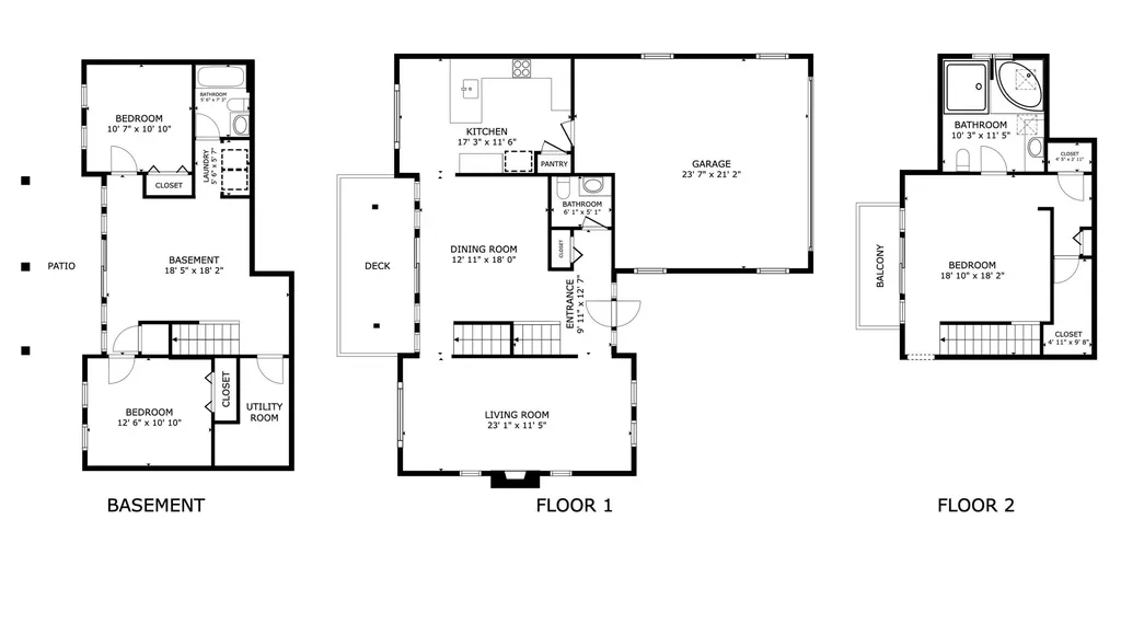
Welcome to 190 Chase Way, a beautifully maintained detached condo in Manchester's highly desirable North End. This light-filled home offers freshly painted interiors and a thoughtfully designed multi-level layout that creates distinct yet connected living spaces. The main living area is anchored by a wood-burning fireplace, perfect for cozy winter evenings, while oversized windows flood the home with natural light throughout the day. The kitchen features a Sub-Zero refrigerator and opens to both indoor and outdoor entertaining spaces. Enjoy the deck off the dining room and or the patio from the finished walk out basement, ideal for relaxing or hosting guests. Additional highlights include a walk-in shower in the primary suite, central air, and a large two-car attached garage providing exceptional storage and convenience. A rare opportunity to enjoy condo living with the privacy and feel of a single-family home in one of Manchester's most sought-after locations. Amenities and Locations near the home include SNHU, Route 93, Shopping Plazas, Restaurants, Hiking, Walking Trails and McIntyre Ski Area. Approximately an hours drive to the lakes region, the seacoast and Boston.

Listing Tools (detailViewNewGen)

Property Details of 190 Chase Way, Unit 190

Property Details

Interior Features

Exterior Features

Community

Other Details

Map Location

Broker Reciprocity 

Copyright 2026 PrimeMLS, Inc. All rights reserved. This information is deemed reliable, but not guaranteed. The data relating to real estate displayed on this display comes in part from the IDX Program of PrimeMLS. The information being provided is for consumers’ personal, non-commercial use and may not be used for any purpose other than to identify prospective properties consumers may be interested in purchasing. Data last updated February 17, 2026 3:07 AM EST

 

Hi there! How can we help you?

Contact us using the form below or give us a call.

Send Us A Message:

I agree to receive marketing and customer service calls and text messages from Gilman Real Estate. To opt out, you can reply 'stop' at any time or click the unsubscribe link in the emails. Consent is not a condition of purchase. Msg/data rates may apply. Msg frequency varies. Privacy Policy.

Do not fill in this field:

This site is protected by reCAPTCHA and the Google Privacy Policy and Terms of Service apply.

Hi there! How can we help you?

Contact us using the form below or give us a call.

Send Us A Message:

Do not fill in this field:

This site is protected by reCAPTCHA and the Google Privacy Policy and Terms of Service apply.

Hi there! How can we help you?

Contact us using the form below or give us a call.

Send Us A Message:

Do not fill in this field:

This site is protected by reCAPTCHA and the Google Privacy Policy and Terms of Service apply.

Do not fill in this field:

This site is protected by reCAPTCHA and the Google Privacy Policy and Terms of Service apply.

Do not fill in this field:

This site is protected by reCAPTCHA and the Google Privacy Policy and Terms of Service apply.

Do not fill in this field:

This site is protected by reCAPTCHA and the Google Privacy Policy and Terms of Service apply.

$

Do not fill in this field:

This site is protected by reCAPTCHA and the Google Privacy Policy and Terms of Service apply.